|
|
您當前的位置:首頁 > 產品展示 > 離心風機系列 > 9-19系列高壓離心風機 |
|
 |
|
9-19高壓離心機 |
|
機號:4#-6.3# 風量:824-7729 m3/h 風壓:3110-9650 Pa |
|
特點:采用A式直聯傳動,風壓高、效率高、高效區寬、結構緊湊、運行可靠 |
|
應用:高壓強制通風,如鍛冶爐等場合 |
|
 |
|
9-19高壓離心風機 |
|
機號:7.1#-12.5# 風量:3297-19986 m3/h 全壓:3320-12350
Pa |
|
特點:采用D式聯軸器直聯傳動,風壓高、效率高、高效區寬、結構緊湊、運行可靠 |
|
應用:高壓強制通風,如鍛冶爐等場合 |
|
一、9-19 離心風機性能參數表
機號 |
轉速
(rpm) |
風量
(m3/h) |
全壓
(Pa) |
功率
(kW) |
重量
(kg) |
4A |
2900 |
824
1017
1209 |
3660
3750
3720 |
2.2 |
68 |
1401
1594
1786
1978 |
3610
3470
3290
3110 |
3 |
76 |
4.5A |
2900 |
1174
1448
1721
1995 |
4690
4800
4760
4630 |
4 |
100 |
2269
2543
2817 |
4450
4250
4040 |
5.5 |
120 |
5A |
2900 |
1610
1986
2361
2737 |
5850
5980
5940
5770 |
7.5 |
136 |
3113
3488
3864 |
5580
5330
5080 |
11 |
184 |
5.6A |
2900 |
2262
2790
3317 |
7420
7560
7520 |
11 |
208 |
3845
4373
4901
5429 |
7320
7080
6790
6500 |
15 |
240 |
6.3A |
2900 |
3221
3972
4723 |
9480
9650
9590 |
18.5 |
288 |
5475
6226
6978
7729 |
9360
9080
8720
8370 |
30 |
368 |
7.1D |
2900 |
4610
5685
6761 |
12140
12350
12280 |
37 |
700 |
7837
8912
9988
11064 |
12000
11660
11230
10810 |
45 |
860 |
8D
|
2900 |
6594
8133
9672
11211 |
15140
15690
15600
15230 |
75 |
1040 |
12759
14288
15827 |
14800
14260
13720 |
110 |
1070 |
1450 |
3297
4067
4836 |
3790
3860
3840 |
7.5 |
570 |
5605
6375
7144
7913 |
3740
3620
3470
3320 |
11 |
630 |
|
|
機號 |
轉速
(rpm) |
風量
(m3/h) |
全壓
(Pa) |
功率
(kW) |
重量
(kg) |
9D |
1450 |
4695
5790
6886 |
4840
4930
4910 |
15 |
720 |
7981
9076
10172
11267 |
4790
4640
4470
4280 |
18.5 |
770 |
10D |
1450 |
6440
7943
9445
10948
12451 |
6020
6130
6090
5950
5780 |
30 |
890 |
13953
15456 |
5570
5360 |
37 |
920 |
11.2D |
1450 |
9048
111159
13270 |
7550
7690
7640 |
45 |
1360 |
15381
17492
19603
21714 |
7460
7250
6990
6720 |
75 |
1600 |
960 |
5990
7288
8786
10183
11581 |
3290
3350
3330
3250
3150 |
15 |
1230 |
12979
14376 |
3030
2910 |
18.5 |
1300 |
12.5D |
1450 |
12578
15513
18448 |
9410
9570
9520 |
75 |
1700 |
21383
24317
27252
30187 |
9300
9030
8700
8370 |
110 |
2150 |
960 |
8327
10271
12214 |
4120
4200
4170 |
22 |
1400 |
14157
16100
18043
19986 |
4080
3960
3820
3670 |
37 |
1540 |
14D |
960 |
11699
14428
17158 |
5004
5090
5047 |
37 |
2300 |
19888
22618
25348
28078 |
4917
4709
4494
4249 |
75 |
2970 |
16D |
960 |
17463
21538
25613 |
6570
6682
6627 |
75 |
3780 |
29687
33762
37837
41912 |
6456
6180
5898
5575 |
110 |
3980 |
|
9-26 離心風機性能參數表
機號 |
轉速
(rpm) |
風量
(m3/h) |
全壓
(Pa) |
功率
(kW) |
重量
(kg) |
|
機號 |
轉速
(rpm) |
風量
(m3/h) |
全壓
(Pa) |
功率
(kW) |
重量
(kg) |
4A |
2900 |
2198
2473
2748
3022
3297 |
3930
3850
3740
3590
3420 |
5.5 |
114 |
9D |
1450 |
12519
14804 |
5110
5040 |
30 |
900 |
15649
17214
18779
20344
21909 |
4920
4770
4590
4380
4160 |
45 |
970 |
3572
3847 |
3210
3000 |
7.5 |
120 |
4.5A |
2900 |
3572
3847 |
5010
4920 |
7.5 |
132 |
3912
4303
4695
5086
5477 |
4790
4610
4400
4160
3900 |
11 |
180 |
10D |
1450 |
17173
19320
21466 |
6350
6250
6110 |
55 |
1090 |
23613
25760
27906
30053 |
5940
5730
5480
5220 |
75 |
1250 |
5A |
2900 |
4293
4830
5367
5903 |
6230
6130
5960
5750 |
15 |
210 |
11.2D |
1450 |
24127
27143
30159
33175 |
7960
7850
7670
7450 |
110 |
2150 |
6440
6977
7513 |
5510
5220
4920 |
18.5 |
230 |
5.6A |
2900 |
6030
3786 |
7870
7740 |
22 |
300 |
36190
39206
42222 |
7180
6870
6550 |
132 |
2250 |
7540
8294
9048
9802
10556 |
7540
7300
7000
6670
6310 |
30 |
350 |
960 |
15974
17970
19967
21964 |
3470
3420
3340
3240 |
30 |
1460 |
6.3A |
2900 |
8858
9662
10735 |
10020
9860
9630 |
45 |
490 |
11809
12882
13956
15029 |
9340
8990
8570
8140 |
55 |
580 |
23961
25957
27954 |
3120
2980
2830 |
37 |
1550 |
12.5D |
960 |
22207
24982
27758 |
4350
4280
4190 |
45 |
1790 |
7.1D |
2900 |
12293
13830 |
12800
12610 |
75 |
1050 |
15366
16903
18439
19976
21513 |
12330
11970
11540
11050
10520 |
110 |
1500 |
30534
33310
36086
38862 |
4070
3920
3750
3570 |
75 |
2240 |
8.0D |
2900 |
17585
19783 |
16250
16010 |
132 |
1620 |
14D |
960 |
31199
35099 |
5450
5370 |
75 |
3100 |
21982
21180
26378
28576
30774 |
15650
15200
14660
14030
13360 |
200 |
1760 |
38998
42898
46798
50698
54598 |
5250
5100
4920
4710
4480 |
110 |
3220 |
1450 |
8793
9892
10991 |
4020
3950
3850 |
18.5 |
715 |
16D |
960 |
46571
52392
58213 |
7120
7020
6860 |
160 |
3700 |
12090
13189
14289
14288
15387 |
3730
3580
3410
3220 |
30 |
800 |
64035
69856
75677
81499 |
6660
6420
6150
5850 |
250 |
4660 |
二、9-19 9-26系列風機外形尺寸
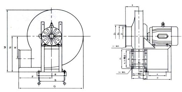
9-19??9-26系列?4A?-6.3A?離心風機外形尺寸圖、表 |
系列 |
機?號 |
D1 |
D2 |
D3 |
n1-Φd1 |
A1 |
A2 |
A3 |
A4 |
A5 |
A6 |
X |
Y |
n2-Φd2 |
9-19 |
4A |
180 |
220 |
250 |
8-7 |
128 |
174 |
214 |
92 |
138 |
178 |
3 |
2 |
10-7 |
4.5A |
200 |
250 |
280 |
8-7 |
144 |
198 |
230 |
104 |
152 |
192 |
3 |
2 |
10-7 |
5A |
224 |
265 |
305 |
8-7 |
160 |
206 |
246 |
115 |
160 |
202 |
3 |
2 |
10-7 |
5.6A |
250 |
308 |
348 |
8-10 |
179 |
225 |
265 |
129 |
174 |
215 |
3 |
2 |
10-7 |
6.3A |
280 |
335 |
375 |
8-10 |
202 |
246 |
288 |
145 |
189 |
231 |
3 |
2 |
10-7 |
系列 |
機?號 |
D1 |
D2 |
D3 |
n1-Φd1 |
A1 |
A2 |
A3 |
A4 |
A5 |
A6 |
X |
Y |
n2-Φd2 |
9-26 |
4A |
224 |
254 |
284 |
8-7 |
196 |
228 |
250 |
128 |
165 |
184 |
4 |
3 |
14-7 |
4.5A |
250 |
280 |
310 |
8-10 |
221 |
252 |
275 |
144 |
177 |
2300 |
4 |
3 |
14-7 |
5A |
280 |
320 |
360 |
8-10 |
245 |
284 |
299 |
160 |
192 |
216 |
4 |
3 |
14-7 |
5.6A |
315 |
355 |
395 |
8-10 |
274 |
304 |
328 |
179 |
216 |
235 |
5 |
4 |
14-7 |
6.3A |
355 |
395 |
435 |
8-10 |
309 |
340 |
365 |
202 |
236 |
261 |
5 |
4 |
10-7 |
系列 |
機?號 |
E |
F |
G |
K |
M |
N |
a |
b |
c |
d |
e |
f |
9-19 |
4A |
108 |
361 |
692 |
286 |
715 |
420 |
200 |
350 |
50 |
300 |
385 |
35 |
4.5A |
120 |
344 |
716 |
322 |
782 |
450 |
240 |
390 |
50 |
340 |
430 |
39 |
5A |
126 |
376 |
788 |
258 |
868 |
500 |
340 |
450 |
50 |
440 |
495 |
43 |
5.6A |
140 |
415 |
874 |
401 |
962 |
550 |
350 |
480 |
50 |
450 |
534 |
48 |
6.3A |
157 |
461 |
975 |
451 |
1085 |
620 |
450 |
570 |
60 |
570 |
626 |
55 |
系列 |
機?號 |
E |
F |
G |
K |
M |
N |
a |
b |
c |
d |
e |
f |
9-26 |
4A |
132 |
360 |
711 |
287 |
761 |
450 |
240 |
390 |
50 |
340 |
430 |
49 |
4.5A |
147 |
405 |
799 |
322 |
849 |
500 |
340 |
450 |
50 |
440 |
495 |
55 |
5A |
165 |
450 |
887 |
359 |
939 |
550 |
350 |
485 |
50 |
450 |
534 |
61 |
5.6A |
186 |
504 |
993 |
402 |
1053 |
620 |
450 |
570 |
60 |
570 |
626 |
68 |
6.3A |
209 |
567 |
1117 |
451 |
1167 |
680 |
550 |
720 |
70 |
690 |
780 |
77 |
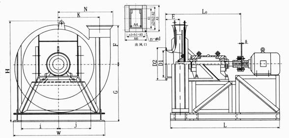
9-19??9-26系列7.1D-16D離心風機外形尺寸圖、表 |
系列 |
機?號 |
D1 |
D2 |
A1 |
A2 |
A3 |
A4 |
A5 |
A6 |
n-Φd |
n1×b1 |
n2×b2 |
9-19 |
7.1D |
315 |
395 |
227 |
272 |
313 |
163 |
218 |
248 |
14-10 |
3×68 |
4×68 |
8D |
355 |
436 |
256 |
312 |
342 |
184 |
244 |
294 |
14-10 |
3×76 |
4×74 |
9D |
400 |
506 |
288 |
348 |
398 |
207 |
263 |
313 |
18-10 |
4×63 |
5×66 |
10D |
450 |
550 |
320 |
386 |
426 |
230 |
300 |
340 |
18-10 |
1×69 |
5×72 |
11.2D |
500 |
620 |
359 |
420 |
484 |
258 |
328 |
388 |
18-12 |
4×79 |
5×83 |
12.5D |
560 |
680 |
400 |
456 |
489 |
288 |
344 |
380 |
20-12 |
4×86 |
6×76 |
14D |
630 |
750 |
448 |
516 |
557 |
322 |
405 |
448 |
22-12 |
5×81 |
6×86 |
16D |
710 |
830 |
512 |
574 |
621 |
368 |
440 |
484 |
24-12 |
5×88 |
7×82 |
系列 |
機?號 |
D1 |
D2 |
A1 |
A2 |
A3 |
A4 |
A5 |
A6 |
n-Φd |
n1×b1 |
n2×b2 |
9-26 |
7.1D |
400 |
500 |
348 |
390 |
414 |
227 |
272 |
296 |
20-10 |
4×68 |
6×65 |
8D |
450 |
550 |
393 |
432 |
458 |
256 |
300 |
325 |
20-10 |
4×75 |
6×72 |
9D |
500 |
620 |
441 |
483 |
507 |
288 |
330 |
357 |
20-10 |
4×82.5 |
6×80.5 |
10D |
560 |
680 |
490 |
528 |
556 |
320 |
356 |
389 |
20-10 |
4×89 |
6×88 |
11.2D |
630 |
750 |
549 |
600 |
638 |
358 |
410 |
450 |
26-12 |
5×82 |
8×75 |
12.5D |
710 |
830 |
613 |
664 |
702 |
400 |
456 |
492 |
28-12 |
6×76 |
8×83 |
14D |
800 |
920 |
686 |
747 |
795 |
448 |
516 |
564 |
30-12 |
6×86 |
9×83 |
16D |
900 |
1040 |
784 |
840 |
893 |
512 |
588 |
628 |
34-12 |
7×84 |
10×84 |
系列 |
機?號 |
E |
F |
G |
H |
K |
N |
L0 |
L |
W |
i |
j |
ε |
9-19 |
7.1D |
177 |
466 |
680 |
1200 |
507 |
656 |
1230 |
2100 |
1150 |
400 |
450 |
4-6 |
8D |
200 |
525 |
760 |
1350 |
572 |
733 |
1256 |
2220 |
1250 |
440 |
520 |
4-6 |
9D |
226 |
590 |
850 |
1520 |
644 |
821 |
1289 |
1930 |
1400 |
500 |
600 |
4-6 |
10D |
250 |
656 |
940 |
1680 |
723 |
908 |
1317 |
2060 |
1500 |
550 |
650 |
6-8 |
11.2D |
280 |
735 |
1050 |
1890 |
801 |
1025 |
1595 |
2440 |
1700 |
600 |
800 |
6-8 |
12.5D |
313 |
820 |
1160 |
2100 |
895 |
1140 |
1633 |
2550 |
1900 |
700 |
900 |
8-10 |
14D |
350 |
920 |
1280 |
2400 |
1001 |
1270 |
2030 |
2900 |
2050 |
800 |
950 |
12-14 |
16D |
400 |
1050 |
1440 |
2700 |
1144 |
1460 |
2090 |
3400 |
2250 |
880 |
1040 |
12-14 |
系列 |
機?號 |
E |
F |
G |
H |
K |
N |
L0 |
L |
W |
i |
j |
ε |
9-26 |
7.1D |
237 |
639 |
730 |
1260 |
509 |
716 |
1317 |
2290 |
1200 |
420 |
520 |
4-6 |
8D |
262 |
720 |
810 |
1410 |
5740 |
803 |
1349 |
2330 |
1400 |
500 |
600 |
4-6 |
9D |
294 |
810 |
920 |
1590 |
646 |
900 |
1392 |
2140 |
1500 |
550 |
650 |
6-8 |
10D |
327 |
900 |
1000 |
1760 |
717 |
995 |
1433 |
2260 |
1600 |
600 |
700 |
6-8 |
11.2D |
367 |
1008 |
1130 |
1980 |
803 |
1122 |
1724 |
2660 |
1850 |
700 |
850 |
8-10 |
12.5D |
418 |
1125 |
1240 |
2190 |
896 |
1247 |
1755 |
2690 |
1950 |
740 |
940 |
8-10 |
14D |
469 |
1260 |
1450 |
2500 |
1003 |
1380 |
2200 |
3350 |
2050 |
800 |
950 |
12-14 |
16D |
524 |
1440 |
1540 |
2800 |
1148 |
1610 |
2270 |
3650 |
2300 |
900 |
1100 |
12-14 |
|